
Family Living Maria Rain
Wohneinheiten
Größe
Zimmer
Grundstücksfläche
Wohnfläche
Zimmer
Drei moderne Wohnhäuser zwischen Stadt und Natur
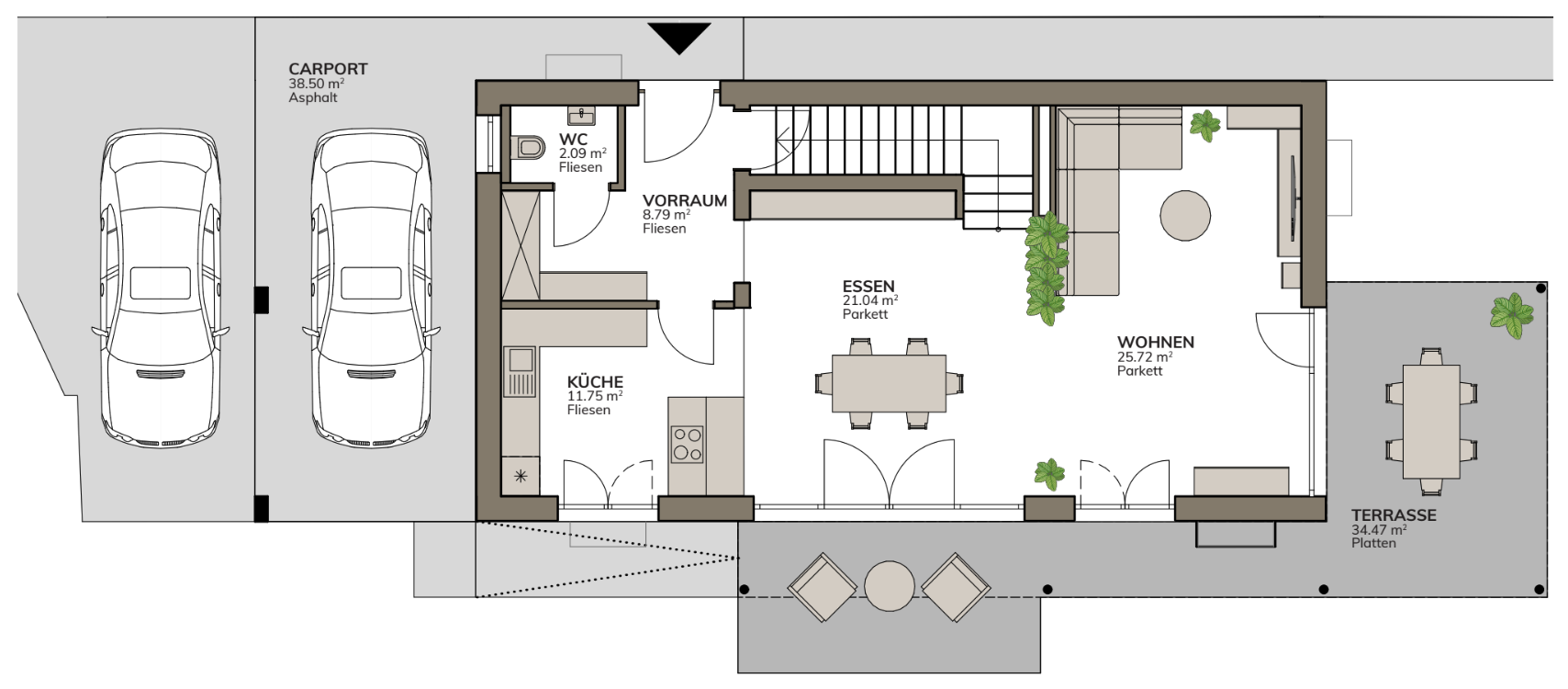
In ruhiger Naturlage unweit von Klagenfurt entstehen drei moderne Wohnhäuser, die klare Architektur mit warmer Holzoptik und lichtdurchfluteten Räumen vereinen. Jedes Haus bietet auf zwei Vollgeschossen durchdachte Grundrisse, einen geräumigen Keller für Hobby und Stauraum sowie einen eigenen Carport. Ein echtes Highlight ist der private Garten, der Ihnen viel Freiraum für Entspannung und Familie bietet.
Highlights dieses Projekts
- Drei moderne Wohnhäuser in ruhiger, grüner Lage nahe Klagenfurt
- Zweistöckige Bauweise mit großzügig geplanten Wohnflächen
- Große Fensterfronten für viel Tageslicht und offene Wohnbereiche
- Privater Garten je Haus für Entspannung, Spielen und gesellige Stunden
- Eigener Carport direkt am Haus
- Geräumiger Keller mit vielseitigen Nutzungsmöglichkeiten
- Attraktive Kombination aus naturnahem Wohnen und Stadtnähe
- Gute Anbindung an Einkaufsmöglichkeiten, Schulen und Freizeitangebote
Kategorie

Grundstücksfläche

Projektadresse


Baustart

Baustart

Fertigstellung

Einheiten in diesem Projekt
Noch ? von ? Einheiten verfügbar
Wie viel Wohnfläche hätten Sie gerne?
Was soll es denn sein?


Wohnen im Grünen nahe Klagenfurt
Die drei Wohnhäuser entstehen in einer ruhigen, naturnahen Umgebung nur wenige Fahrminuten vom Stadtgebiet Klagenfurt entfernt. Hier genießen Sie entspannte Wohnqualität im Grünen und profitieren gleichzeitig von der Nähe zur urbanen Infrastruktur der Kärntner Landeshauptstadt.
Einkaufsmöglichkeiten, Schulen, Kinderbetreuung und medizinische Einrichtungen sind gut erreichbar, ebenso wie Freizeitangebote rund um den Wörthersee, Rad- und Spazierwege oder kulturelle Veranstaltungen in der Innenstadt. Die Anbindung an den öffentlichen Verkehr und das regionale Straßennetz sorgt für kurze Wege und eine hohe Alltagstauglichkeit.
Lage & Infrastruktur
Ruhige Wohnlage im Grünen mit schneller Anbindung an die Stadt Klagenfurt, Einkaufsmöglichkeiten, Schulen und Freizeitangebote.


Bahnhof
Supermarkt
Schule
Apotheke
1,5 km
1,5 km
1,7 km
1,7 km
2,6 km
2,6 km
3,8 km
3,8 km




Fordern Sie
jetzt Ihr Exposé an
Im Exposé erhalten Sie alle wichtigen Informationen zu Ihrer neuen Wohnmöglichkeit. Auf Wunsch vereinbaren wir gerne ein persönliches Beratungsgespräch, um Ihre individuellen Fragen zu klären.




.jpg)



