Haus 3
Modernes Einfamilienhaus mit Terrasse und Garten in Maria Rain
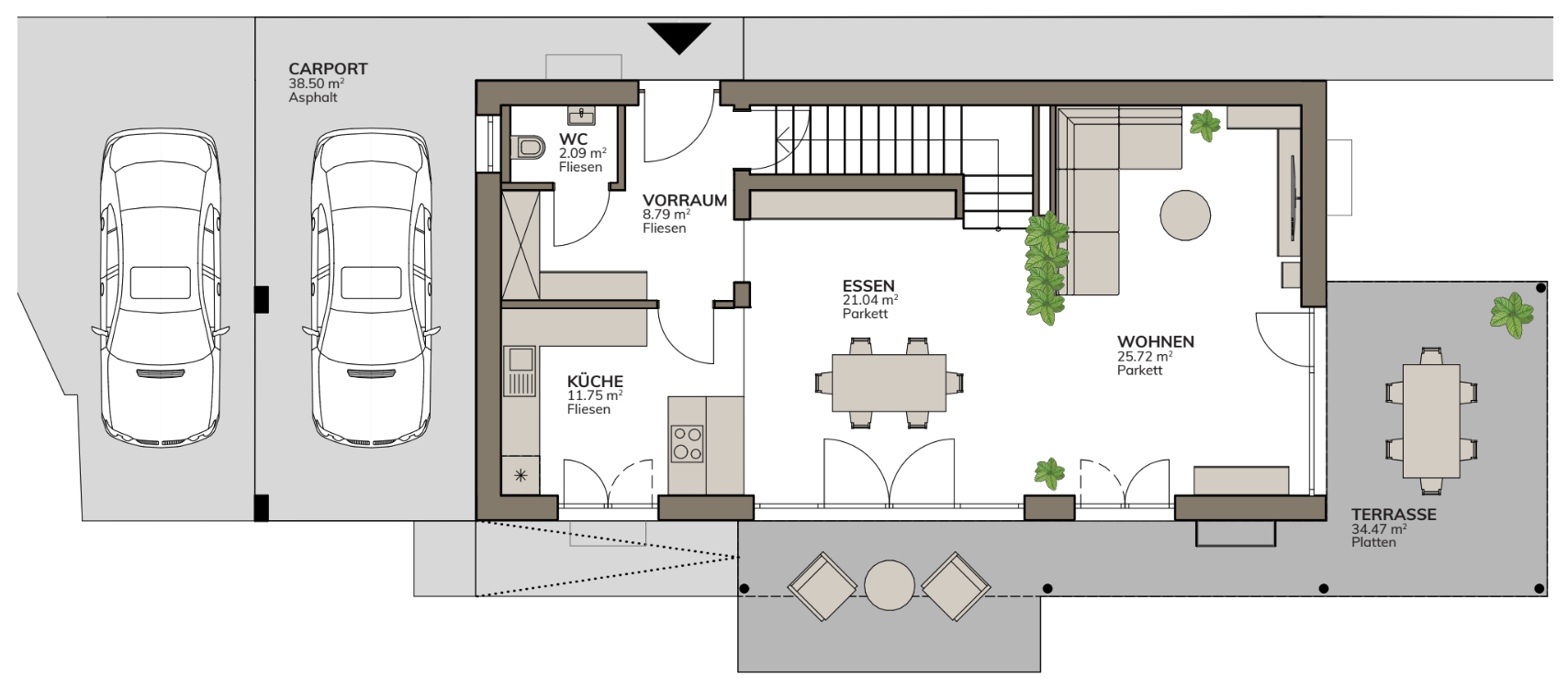
Einfamilienhaus auf zwei Wohnebenen mit großzügigem Wohn-Essbereich, Terrasse, Garten und großzügigem Keller-/Technikbereich in ruhiger Lage von Maria Rain. Inklusive Carport.




Fordern Sie
jetzt Ihr Exposé an
Im Exposé erhalten Sie alle wichtigen Informationen zu Ihrer neuen Wohnmöglichkeit. Auf Wunsch vereinbaren wir gerne ein persönliches Beratungsgespräch, um Ihre individuellen Fragen zu klären.





.jpg)
.jpg)
.jpg)